Overview
- Updated On:
- 9 grudnia, 2025
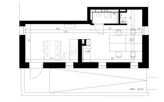
- 110 m2
Description
Do wynajęcia powierzchnia magazynowa.
Pow. 600 m2
Wszystkie media; prąd , woda, kanalizacja
Cena 13 zł/m2 netto
Doskonała komunikacja z centrum miasta oraz szybki dojazd do trasy S8.
Energy Class: A+
Energy class A+
A+A
B
C
D
E
F
G
H
Property Id : 139447
Price: zł 7,800
Property Size: 110 m2
Rooms: 3
Other Features
hala
piętro: 0/0
rok budowy:
rynek:
zł 39.99
per month- Principal and Interest
- Property Tax
- HOA fee
zł 30.24
śr.
21
sty
czw.
22
sty
pt.
23
sty
sob.
24
sty
niedz.
25
sty
pon.
26
sty
wt.
27
sty
śr.
28
sty
czw.
29
sty
pt.
30
sty











