Overview
- Updated On:
- 12 marca, 2026
- 43 m2
- Year Built: 1967
Description
Zapraszam do zakupu mieszkania, położonego w świetnej lokalizacji przy ul. Grochowskiej w Poznaniu – w spokojnej, dobrze skomunikowanej i znanej części Grunwaldu.
Ta nieruchomość położona jest na PIERWSZYM PIĘTRZE w niskim, ocieplonym i ogrodzonym przez wspólnotę bloku.
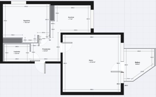
Dwa osobne, ustawne i jasne pokoje – każdy łatwo adaptowalny jako sypialnia, salon, gabinet do pracy czy pokój dla dziecka.
Kuchnia jasna, funkcjonalna i w zabudowie.
Wyposażenie kuchni:
️ piekarnik
️ lodówka
️ pralka
️ mikrofalówka
️ kuchenka gazowa
Czynsz ok. 762 zł miesięcznie.
To mieszkanie łączy funkcjonalność z lokalizacją i świetnie sprawdzi się zarówno dla pary, rodziny, jak i inwestycja pod wynajem.
Doskonałe połączenia z całym miastem – w pobliżu znajdują się przystanki MPK, obsługiwane przez wiele linii tramwajowych i autobusowych, dzięki czemu dojazd do centrum lub na uczelnię jest szybki i wygodny.
W okolicy znajdziesz wiele sklepów i punktów usługowych:
sklepy spożywcze takie jak Biedronka, Lidl czy Żabka, piekarnie i drogerie, apteki, gabinety usługowe i punkty kurierskie, lokalne ryneczki i mniejsze sklepiki, które dodają dzielnicy lokalnego charakteru centrum handlowe i większe markety w bliskiej odległości.
Grunwald to część Poznania z bogatą ofertą szkół, przedszkoli i żłobków, więc jest to miejsce przyjazne rodzinom z dziećmi.
W okolicy znajdziesz parki, skwery i tereny zielone idealne do spacerów, biegania, czy weekendowego odpoczynku na świeżym powietrzu..
Dlaczego warto kupić to mieszkanie?
Funkcjonalny układ – dwa niezależne pokoje + osobna kuchnia to komfort codziennego życia;
Blisko infrastruktury i komunikacji – codzienne sprawy załatwisz bez problemu pieszo lub komunikacją miejską;
Bezpieczna dzielnica – Grunwald to miejsce, które można nazwać domem.
Zadzwoń i umów się na prezentację już dziś!
Agent prowadzący:
Anna Najdek
Pośrednik w obrocie nieruchomościami
tel. kont. 883 069 767
Zapewniamy bezpłatną pomoc w uzyskaniu najlepszych warunków kredytowych na rynku.
Powyższy opis ma charakter informacyjny i nie stanowi oferty w rozumieniu KC.
Informacje zawarte w ogłoszeniu, zostały sporządzone na podstawie oględzin oraz danych przekazanych przez właściciela i mogą ulec aktualizacji i nie stanowią oferty określonej w art. 66 i następnych K.C.
Zdjęcia i opisy w tej ofercie objęte są ochroną praw autorskich majątkowych i osobistych, stanowią własność w świetle prawa autorskiego. Wykorzystywanie ich lub rozpowszechnianie bez pisemnej zgody autora, jest naruszeniem praw autorskich i pociąga za sobą odpowiedzialność prawną.
- Principal and Interest
- Property Tax
- HOA fee









